Pure design | Old house renovation · Strolling in the sunshine
Pure design | Old house renovation · Strolling in the sunshine

1.jpg


Project Name: Strolling in the Sunshine

Project Address: Foshan, Guangdong

Project area: 158 square meters



2.png




This case is located in Qiandeng Lake, Nanhai, Foshan, Guangdong Province, in the core area of the district. It is known as the C-place of Foshan and also a coveted residential destination for many people.


The house was delivered in the form of a fully furnished house in 2005, and now fully furnished houses have become the main product in the new housing market. However, the convergence of standardized and undifferentiated products often deviates from the actual life of the owners. Therefore, after living for more than 10 years, the owner also wants to make some changes.



3.gif



There are not many requirements for homeowner renovation: firstly, the living space should be bright and clean, and a reasonable plan for residential use within 5-10 years should be arranged. Three seemingly simple requirements, but they are full of challenges for designers. How can they provide satisfactory answers to homeowners? How do designers think and plan? Today, GABO will take you to see how the magic hands of Pure Space can bring new life to old houses!




4.png


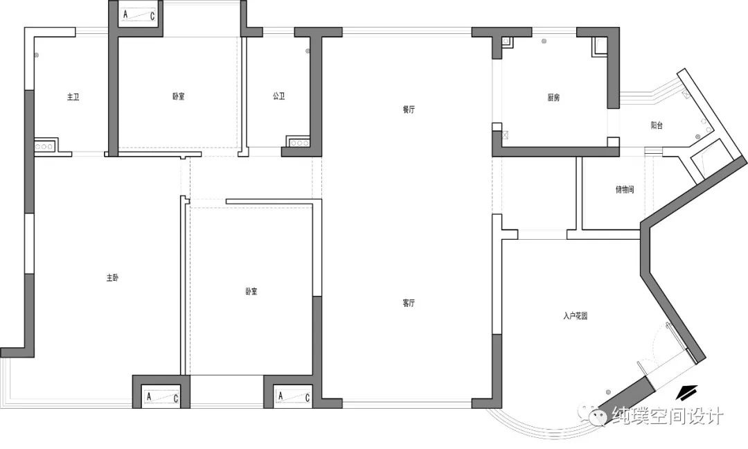
From the original layout plan, it can be seen that the entrance hall and dining room have similar areas, but the spatial hierarchy is not clear. The garden landscape outside the floor to ceiling window of the living room is very beautiful, but because of the layout, it cannot get the best viewing effect. A series of solutions to the problems of low daily kitchen utilization and space waste will be presented and integrated into the design in a new way.



5.png


The designer boldly broke the original layout of the space, reorganized and divided it, removed the wall between the entrance garden and the living room, and replaced it with a semi open cabinet as a partition, expanding the living room area and solving the storage problem at the entrance. Entering the house immediately diverts traffic, with a dual flow design that extends the space and broadens the view.



6.png


6_看图王.jpg


640.png


640.png


640.png



Choosing double-sided sofas as the link for space activities in the living room makes space activities more diversified, suitable for both movement and stillness.



640.png



The original kitchen area has been converted into a laundry room and storage room, providing a great private space. At the same time, according to the living habits of the owners, the restaurant will be transformed into an open style western kitchen, connecting the dining and dining areas and making the space more transparent.



640.png


640.png



The designer of the entire space blends subtle and rich micro cement as the base of the space, which displays light and color changes. Paired with delicate wooden partition cabinets, it creates a warm and comfortable atmosphere. Choose matte textured panels in the kitchen area to extend the spatial light and shadow atmosphere, filling it with comfort, ease, and relaxation



640.png


640.png



Sunlight and air naturally flow and stretch in open spaces, changing with the morning light and sunset throughout the year. The natural and dynamic indoor and outdoor lake and mountain scenery blend together, as if it were natural. This is a gift from nature and closely related to the designer's understanding of space.



640.jpg



The master bedroom has a spacious and distinctive design. The bathtub is placed next to the french window of the room, allowing the owner to have a bathing experience like a star hotel. The curtains are made of sun and moon curtains with adjustable light and shadow, creating a romantic atmosphere for the bathing environment.



640.png


640.png



The movable grid screen cleverly melts ambiguity into the space. In a private space, hot water is poured into a white bathtub, and aromatherapy is applied. When the body slides into the water, the mind also drifts with the smoke and returns to nature.



640.png


640.png


640.jpg



-





END





-









©2020 GABO ALL RIGHTS RESERVED 粤ICP备2021084067号 Design By:GABO  法律声明  私隐条款

Follow Us :

01-首页99_07.jpg


01-首页99_16.jpg    01-首页99_18.jpg    01-首页99_11.jpg    01-首页99_13.jpg



Tfsh: 400-088-3380  I Web: www.gabowy.com

©2020 GABO ALL RIGHTS RESERVED 

粤ICP备2021084067号

法律声明  丨  隐私条款  Design By:  GABO

Noble Partner !
尊贵的合作伙伴!
欢迎登录进入观博, 以获得最新产品相关资料下载。
登录观博

加盟

合作

资料

下载

会员登录忘记密码?
帐号:
密码:
登录 注册 返回